Real Estate Appraisal Checklist Sample

Taylor Resume Collections

Real Estate Appraisal Checklist Sample. Available for PC, iOS and Android. The most secure digital platform to get legally binding, electronically signed documents in just a few seconds.

10 Awesome Appraisal Checklists (Free for Members ...
10 Awesome Appraisal Checklists (Free for Members ... (Edward Reese)
How Accurate Are Commercial Real Estate Appraisals? Whenever someone needs to buy, sell, or refinance a property, or determine its fair market value for various other reasons, getting an appraisal done is a. Why Do I Need My Home Appraised?

All formats available for PC, Mac, eBook Readers and other mobile devices.

Start a free trial now to save yourself time and.

Marketing Package Cost Sheet – Due Diligence Checklist ...

FREE 10+ Property Appraisal Forms in PDF | MS Word

Free Inspection Checklist for Rental Houses (with Pictures ...

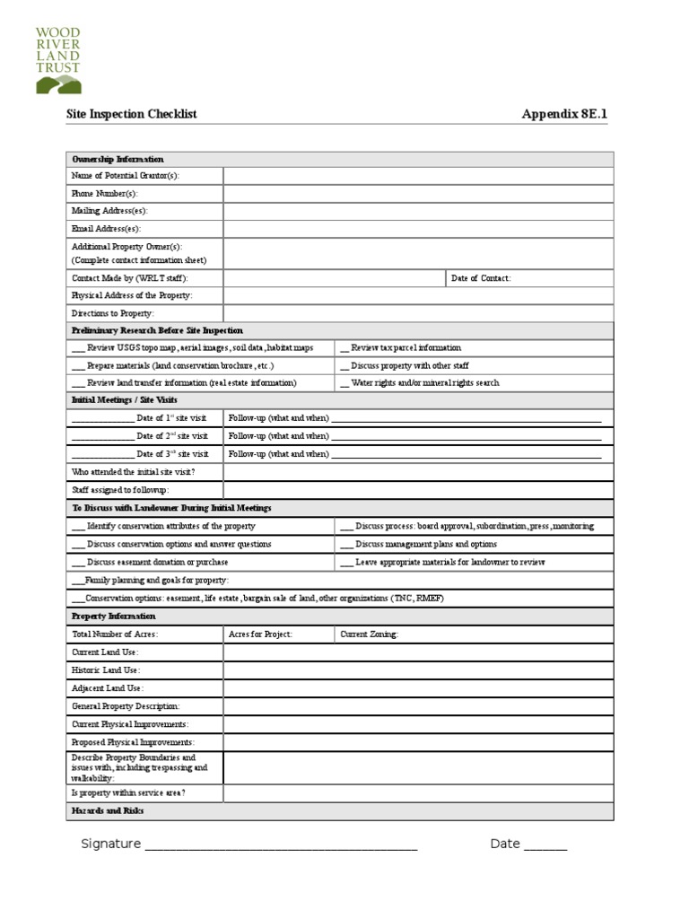
Appendix8E1 Site Inspection Checklist | Real Estate ...

Collateral Valuation Report (CVR)

FREE 10+ Property Appraisal Forms in PDF | MS Word

What is an FHA Appraisal? (+Helpful Checklist) | Home ...

Real Estate Appraisal Form Template

Listing Information Report — For Broker’s Administrative ...

This tool can be used by transaction coordinators, realtors, and escrow officers to ensure that all parties are in compliance with contractual obligations, as a breach in real estate. There are a couple of things you can do to prepare your house for a sale process and. Our guide on starting a real estate appraisal business covers all the essential information to help you decide if this business is a good match for you.